


Flot og regulær produktions-/logistikbygning i Smedenes By - LEM - med et samlet bygningsareal å 12.174 m2 incl 180 m2 kælder beliggende på 30.947 m2 stor indhegnet facadegrund med max udnyttelsesgrad 50%, således at der kan bygges yderligere 3.479,50 m2 på grunden, kan nu købes til langt under halvdelen af seneste offentlige ejendomesværdi for kun 16.995.000 - eller den kan lejes samlet for 125/m2 pa for haller og 250/m2 for administration og kantine eller opdelt i mindre ehnheder for hhv 150 og 300 pa pr m2 + moms og forbrug, 6 mdrs depositum, månedsvis forudbetaling, årlig regulering NPI min 2,5% af gældende leje + stigning i skatter, afgifter og forsikringer og med min 5 års uopsigelighed fra lejer mod det dobbelte fra udlejer.
Godkendes til virksomheder i minimum miljøklasse 4 og maximum miljøklasse 7, velegnet til lager, logistik, metalproduktion mv (Vestas fødeby).
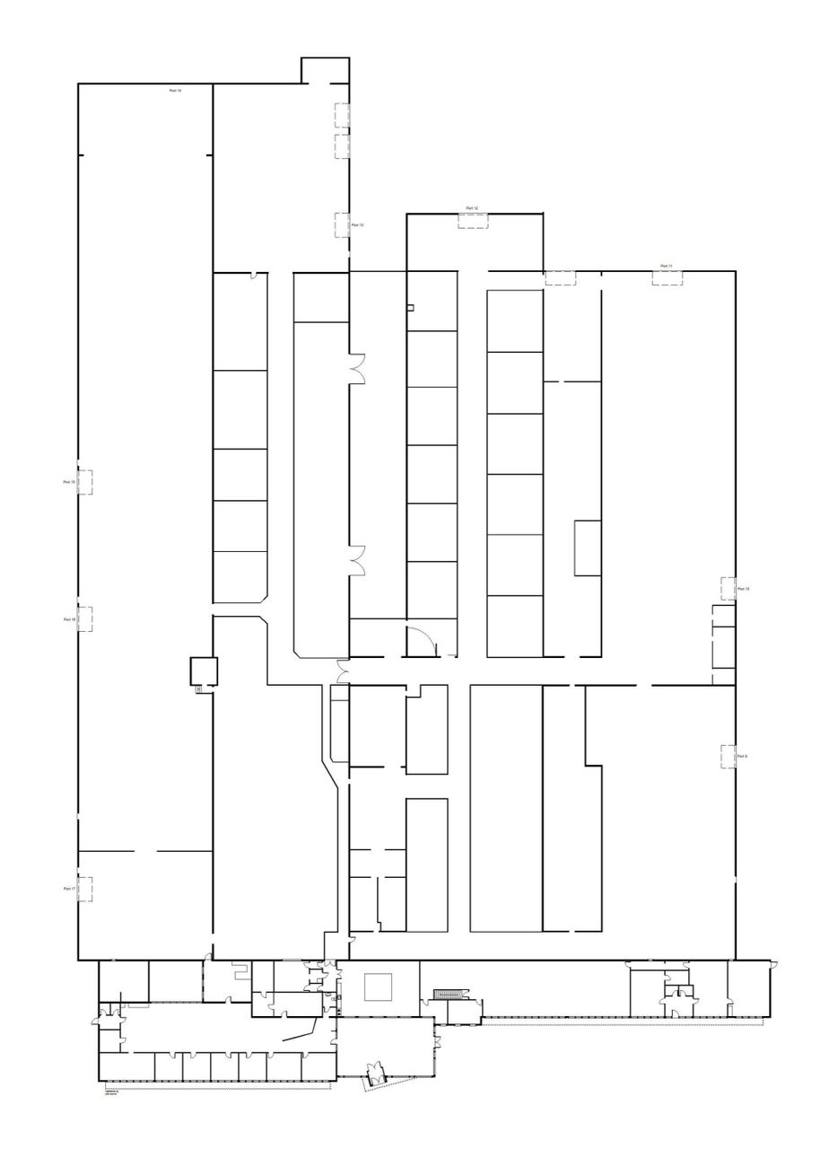
Består af i alt 8 indbyrdes forbundne bygninger på hhv 73 m2, 302 m2, 324 m2, 1.280 m2 +180 m2 kælder (administration og kantine), 2.195 m2, 2.332 m2. 2.691 m2 og 2.797 m2.
Samlet startleje : 10.714 m2 haller 125 1.339.250
1.280 m2 adm. 250 320.000
180 m2 kælder 65 11.700
I alt startleje 1.470.950
Hallerne er søjlefrie, har betongulv og med gode portfaciliteter og Trolltektlofter, de fleste med mulighed for trykluft. Her findes også vaske- og omklædningsfaciliteter, toiletter samt læsserampe mv. Varme : calorifereblæsere. Rumbelysning.
Hallerne ahr eternittag og er oprindelig opført til møbelproduktion, men har senest været anvendt af Hansen Group til fabrikation i metal-sektoren, men vil være velegnede til mange formål.
Stor synlighed og stor facade ud mod Bredgade. Kort afstand til Holstebro, Herning, Ringkøbing, Billund og Esbjerg samt hvide Sande.
Det markante indgangsparti, der giver adgang til kontorer, mødefaciliteter og kantine til 120 personer er tegnet af det anerkendte arkitektfirma Bay Jørgensen.
For solid langtidslejer deltager udlejer gerne i værdiforøgende særindretning efter aftale mod passende tillæg til den anførte startleje til dækning af rimelig forrentning og afskrivning.
Primært ønskes bygningerne dog solgt samlet eller udlejet samlet.
Besigtigelse aftales på *75 136300.
Flot og regulær produktions-/logistikbygning i Smedenes By - LEM - med et samlet bygningsareal å 12.174 m2 incl 180 m2 kælder beliggende på 30.947 m2 stor indhegnet facadegrund med max udnyttelsesgrad 50%, således at der kan bygges yderligere 3.479,50 m2 på grunden, kan nu købes til langt under halvdelen af seneste offentlige ejendomesværdi for kun 16.995.000 - eller den kan lejes samlet for 125/m2 pa for haller og 250/m2 for administration og kantine eller opdelt i mindre ehnheder for hhv 150 og 300 pa pr m2 + moms og forbrug, 6 mdrs depositum, månedsvis forudbetaling, årlig regulering NPI min 2,5% af gældende leje + stigning i skatter, afgifter og forsikringer og med min 5 års uopsigelighed fra lejer mod det dobbelte fra udlejer.
Godkendes til virksomheder i minimum miljøklasse 4 og maximum miljøklasse 7, velegnet til lager, logistik, metalproduktion mv (Vestas fødeby).
Består af i alt 8 indbyrdes forbundne bygninger på hhv 73 m2, 302 m2, 324 m2, 1.280 m2 +180 m2 kælder (administration og kantine), 2.195 m2, 2.332 m2. 2.691 m2 og 2.797 m2.
Samlet startleje : 10.714 m2 haller 125 1.339.250
1.280 m2 adm. 250 320.000
180 m2 kælder 65 11.700
I alt startleje 1.470.950
Hallerne er søjlefrie, har betongulv og med gode portfaciliteter og Trolltektlofter, de fleste med mulighed for trykluft. Her findes også vaske- og omklædningsfaciliteter, toiletter samt læsserampe mv. Varme : calorifereblæsere. Rumbelysning.
Hallerne ahr eternittag og er oprindelig opført til møbelproduktion, men har senest været anvendt af Hansen Group til fabrikation i metal-sektoren, men vil være velegnede til mange formål.
Stor synlighed og stor facade ud mod Bredgade. Kort afstand til Holstebro, Herning, Ringkøbing, Billund og Esbjerg samt hvide Sande.
Det markante indgangsparti, der giver adgang til kontorer, mødefaciliteter og kantine til 120 personer er tegnet af det anerkendte arkitektfirma Bay Jørgensen.
For solid langtidslejer deltager udlejer gerne i værdiforøgende særindretning efter aftale mod passende tillæg til den anførte startleje til dækning af rimelig forrentning og afskrivning.
Primært ønskes bygningerne dog solgt samlet eller udlejet samlet.
Besigtigelse aftales på *75 136300.
