
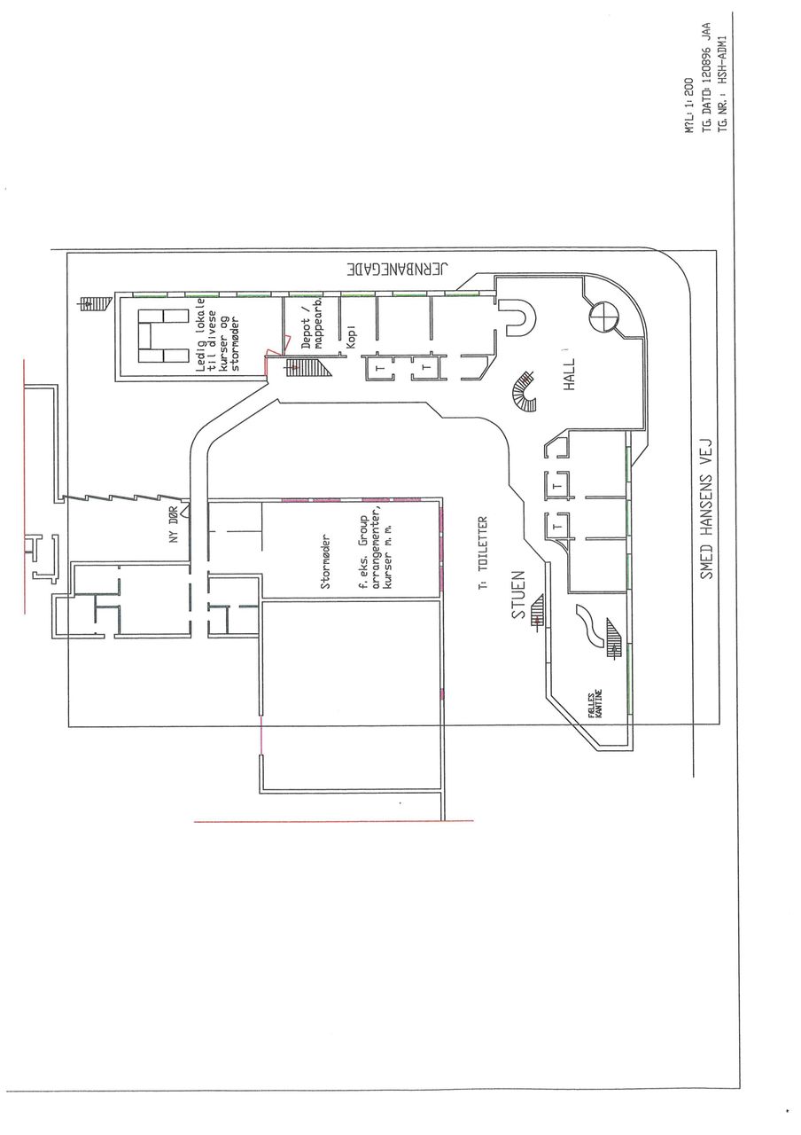
Lige ved banegården i centrum af Smedenes By Lem opførte H S Hansens Fabrikker denne flotte kontor-/administrationsbygning tegnet af Professor C F Møllers Tegnestue, Århus i 1984.
Fremstår hovedsagelig i stål og thermo-glas og med indgang fra hjørnet via elektrisk karrussel-dør, hvorfra man træder ind i receptionsområde med flot klinkegulv og adgang til toiletter samt trappe til 1. sal. Indrettet i dag med bl a 4 kontorer, møderum og kantine. Stort set alle skillevægge er lette vægge, så indretningen er yderst fleksibel. I alt i stueetagen 764 m2.
Første sal, der har trappe fra receptionen samt flugtvejstrappe bagest, har et galleri i 2 fulde etager mod receptionen og her finder vi tillige stort chefkontor sammenhængende med sekretærkontor, 3 store kontorer samt storrumskontor . I alt på 1. sal 478 m2.
En del af thermoruderne planlægges udskiftet til mere energivenlig type. Gulvbelægning er tæpper. Fjernvarme m/Genvex. Kabelbakker.
Reserverede afmærkede p-pladser vil kunne tillejes i gården for 100/md/stk + moms.
Arealerne vil kunne opdeles i mindre enheder mod et tillæg på 50/m2 pa + moms.
Besigtigelse kan aftales på *75 136300.
Udlejer ønsker primært langtidslejemål med min 5 års uopsigelighed for lejer mod at udlejer tilbyder den dobbelte uopsigelighed. Kortere lejemål kan evt forhandles mod passende tillæg.
Udlejer er mod passende tillæg og uopsigelighed åben over for at istandsætte lokalerne med nye gulvtæpper, mindre indretningsændringer etc.
Lige ved banegården i centrum af Smedenes By Lem opførte H S Hansens Fabrikker denne flotte kontor-/administrationsbygning tegnet af Professor C F Møllers Tegnestue, Århus i 1984.
Fremstår hovedsagelig i stål og thermo-glas og med indgang fra hjørnet via elektrisk karrussel-dør, hvorfra man træder ind i receptionsområde med flot klinkegulv og adgang til toiletter samt trappe til 1. sal. Indrettet i dag med bl a 4 kontorer, møderum og kantine. Stort set alle skillevægge er lette vægge, så indretningen er yderst fleksibel. I alt i stueetagen 764 m2.
Første sal, der har trappe fra receptionen samt flugtvejstrappe bagest, har et galleri i 2 fulde etager mod receptionen og her finder vi tillige stort chefkontor sammenhængende med sekretærkontor, 3 store kontorer samt storrumskontor . I alt på 1. sal 478 m2.
En del af thermoruderne planlægges udskiftet til mere energivenlig type. Gulvbelægning er tæpper. Fjernvarme m/Genvex. Kabelbakker.
Reserverede afmærkede p-pladser vil kunne tillejes i gården for 100/md/stk + moms.
Arealerne vil kunne opdeles i mindre enheder mod et tillæg på 50/m2 pa + moms.
Besigtigelse kan aftales på *75 136300.
Udlejer ønsker primært langtidslejemål med min 5 års uopsigelighed for lejer mod at udlejer tilbyder den dobbelte uopsigelighed. Kortere lejemål kan evt forhandles mod passende tillæg.
Udlejer er mod passende tillæg og uopsigelighed åben over for at istandsætte lokalerne med nye gulvtæpper, mindre indretningsændringer etc.